欢迎来到安平县秉德丝网制品有限公司网站!

2025年广深高速公路新塘互通连接线设施维修工程防眩网生产厂家
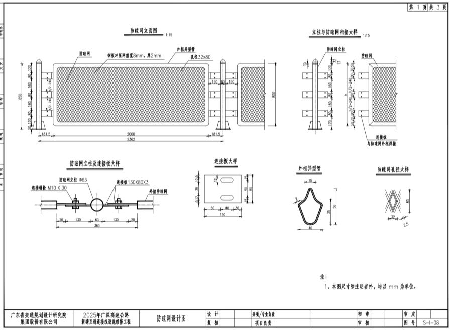
1、本图尺寸除注明者外均以mm为单位。
2、防眩网每12m断开一次,断开处立柱间距为210~ 250mm(中心距),避免受台风影响成片倒塌,断开位置立柱脚之间采用φ5mm铜线捆绑连接,进行防雷接地处理。
3、防眩网网与外框钢管焊接成整体结构。板材采用Q235低碳钢,冲压成型。螺检均采用8.8级大六角头高强螺栓采用防盗螺栓,M10X30螺栓采用全螺纹,头部高度为6.4mm。
4、所有钢构件除注明者外均采用Q235钢制作并采用热渡镀锌涂层,防腐要求应按照《公路交通工程钢构件防腐技术条件》(GB/T18226-2015)执行。紧固件平均镀锌层附着量不低于350g/㎡,平均镀锌层厚度不低于0.049mm;紧固件,其他钢构件平均镀锌层附着量不低于600g/㎡,平均镀锌层厚度不低于0.084mm;镀锌均匀性不小于25%。
5、焊缝等级要求: 侧壁钢板与法兰盘采用熔透焊,焊缝等级为一级,其余焊缝质量等级为二级。钢管与法兰盘间焊接采用坡口对接焊并满焊焊透,所有焊缝应连续焊接并平滑过渡,所有加劲肋焊缝应双面满焊。
6、胶黏型错栓M12X150中心距混凝土边边距C应不小于96mm,两螺栓中心间距应不小于120mm。
7、钻孔时须保证钻机、钻头与植入钢筋的受拉方向一致,保证孔径与孔深尺寸准确。
8、钻孔应避开钢筋.特别是预应力筋和受力筋。钻孔时,如果钻机突然停止或钻头不前进时,应立即停止钻孔,检查是否碰到内部钢筋。对于失败孔,应填满化学粘结剂或高一个强度等级的水泥砂浆,另选新孔。
9、植筋施工工艺严格按照:定位、钻孔、清孔、钢材除锈、注胶、植筋、固化进行。
10、施工工艺等应符合JGJ145-2004<<混凝土结构后错固技术规程>>相关要求。
11、不同材质的金属构件互相接触时,应使用非金属套、垫或保护层使两者隔离。
12、工程数量表仅供参考,具体数量据实计量。其他未尽事应按现行有关规范、标准执行。