欢迎来到安平县秉德丝网制品有限公司网站!

天峨-北海公路巴马至平果段(巴马至羌)上跨公路防落网专业生产厂家
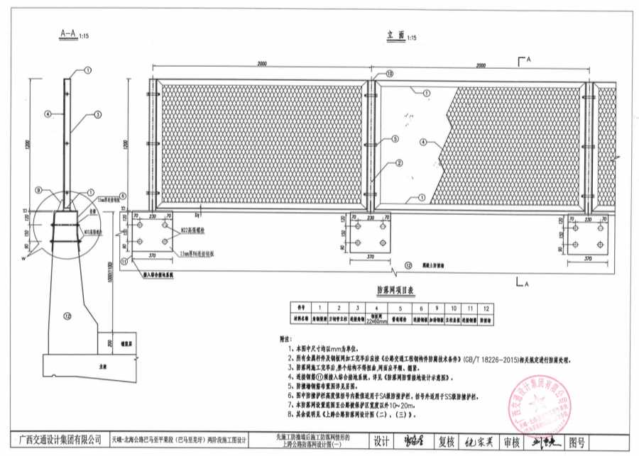
1、本图中尺寸均以mm为单位。
2、钢板网材料为Q195钢板,4号钢板网的板条尺寸为3mm(板厚)X3mm(梗宽),网孔为22mmx60mm的菱形,边框为56x56X5等边角钢。
3、网片平面应平整光洁,无明显的凹凸和毛刺,对边应平行。先将4号钢板网与连接角钢及上、下横梁做成防落网片,每一个焊接点长度不得小于8mm且不得有虚焊漏焊。钢板网焊点的间距不超过0.3m。
4、网片制作完成后必须清理干净焊渣等杂物才能进行防腐蚀处理。