欢迎来到安平县秉德丝网制品有限公司网站!

新疆昌吉S240线准东大井服务区至奇台公路改扩建编织网隔离栅生产厂家
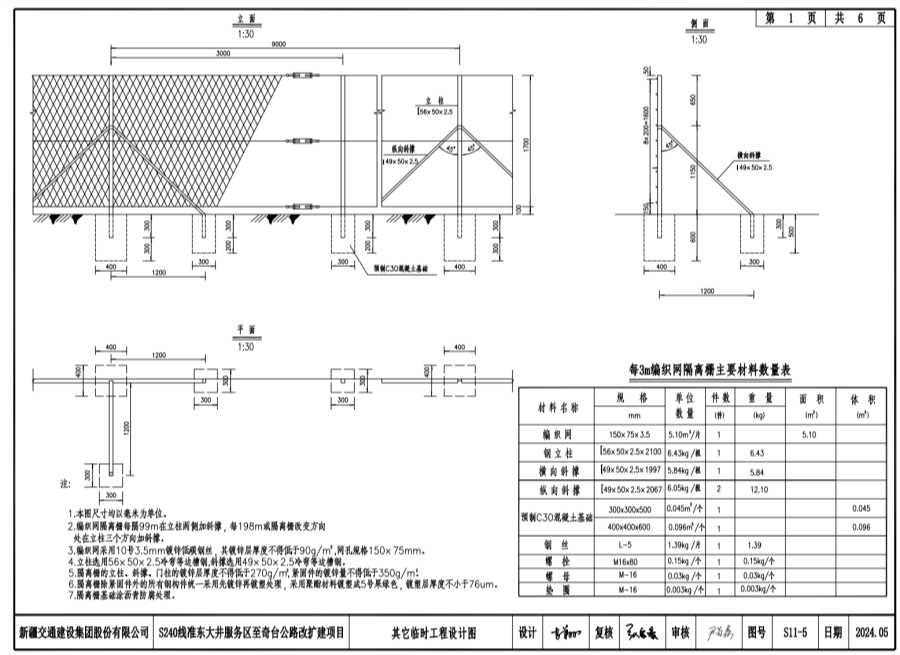
1.本图尺寸均以毫米为单位。
2.编织网隔离栅每隔99m在立柱两侧加斜撑,每18m或隔离栅改变方向处在立柱三个方向加斜撑。
3.编织网采用10号3.5mm镀锌低碳钢丝,其镀锌层厚度不得低于90g/㎡,网孔规格150x75mm。
4.立柱选用56x50x25冷弯等边槽钢,斜撑选用49x50x2.5冷弯等边槽钢。
5.隔离栅的立柱、斜撑、门柱的镀锌层厚度不得低270g/㎡,紧固件的镀锌量不得低于350g/㎡。
6.隔离栅除紧固件外的所有钢构件统一采用先镀锌再镀塑处理,采用聚酷材料镀成5号果绿色,镀塑层厚度不小于76um。
7.隔离栅基础涂沥青防腐处理。