欢迎来到安平县秉德丝网制品有限公司网站!

广西桂林至钦州港公路浸塑网隔离栅专业生产厂家
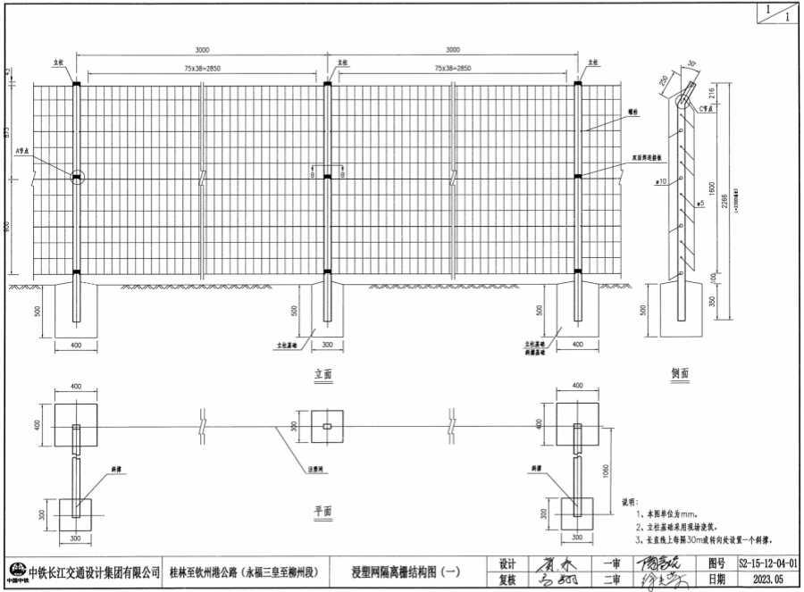
1、本图尺寸均以mm为单位。
2、立柱弯折处先将两翼切割,然后冷弯对焊成型。
3、立柱材料的力学性能应符合GB700,尺寸规格应符合GB6723。
4、施焊前,要求各单件矫正平直并去除毛刺及锈迹。
5、焊接部位要求过渡圆滑,无夹渣、虚焊、气孔等缺陷。
6、浸塑层必须均匀、亮泽,不得存在针孔、流淌堆积、粘结等浸塑缺陷。
7、立柱、连接件、螺栓、螺母、垫圈等浸塑层厚度>0.38mm,网片浸塑层厚度>0.30mm。